华体会网页版登录入口-华体会(中国)-华体会(中国) 华体会网页版登录入口-华体会(中国)-华体会(中国) 政策法规 产业市场 节能技术 能源信息 宏观环境 会议会展 活动图库 资料下载 焦点专题 智囊团 企业库
节能技术  中国节能产业网 >> 节能技术 >> 节能案例 >> 正文
新型水泥预粉磨系统节能技术
来源:中国节能产业网 时间:2015-5-26 18:11:13 用手机浏览

一、技术名称:新型水泥预粉磨系统节能技术

二、技术所属领域及适用范围:建材行业

三、与该技术相关的能耗及碳排放现状

目前,在国内建材、矿山等行业粉磨生产系统中,仍以球磨机作为研磨物料的主 机,球磨机单机生产的能耗极高,达35-40kWh/t,消耗大量电耗。同时,水泥生产中球磨机粉磨电耗约占水泥企业总用电量的70%,因此粉磨系统的节能改造是水泥企业节能减排的重点环节。目前该技术可实现节能量1万tce/a,CO2减排约3万t/a。

四、技术内容

1.技术原理

基于盘辊式料层挤压粉磨比对辊式料层挤压粉磨有较大的临界钳入压力中心角,即具有较小的挤压通道收缩率,有同比较大的实际承压面,因而有较好的料层粉磨稳定性的原理,本公司对现行盘辊式料层挤压粉磨进行多项创新改造,形成多项自主知识产权的具有明显节能特色的FP粉磨系统。

2.关键技术

磨内筛分技术、动静环料层稳定技术、无动力溜子卸料技术、低能耗大型粗粉分级技术、FP无球化粉磨综合技术。

3.工艺流程

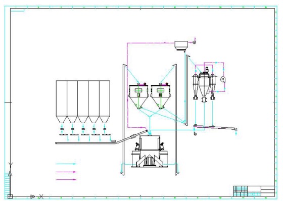
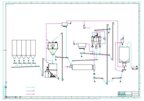
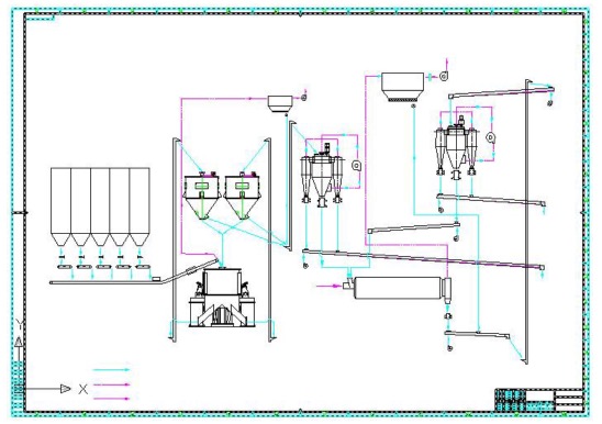
由FFP磨、FPS粗粉分级机等组合并构成FP节能粉磨特征的新型粉磨工艺代表性流程主要表现为下述4项:

1.FPP磨半终粉磨圈流粉磨系统(图1);

123

图1

2.FPP磨半终粉磨开流磨粉磨系统(图2);

123

图2

3.FPP磨预粉磨圈流磨粉磨系统(图3);

123

图3

4.FPP磨水泥终粉磨粉磨系统(图4)

123

图4

五、主要技术指标

1.以PO42.5水泥为例粉磨能耗为:24-27kWh/t(取26kWh/t),其中案例中贵州省贞丰县仁都水泥有限公司的情况生产PC32.5水泥粉磨能耗达到:21.5kWh/t,(折算成PO42.5水泥粉磨能耗为:21.5*1.15=24.725kWh/t)

2.水泥粉磨能耗降低量可达:12kWh/t水泥以上,4.2kgce/t

3.CO2排放量减少量:10.5kg/t水泥;

4.如按年产100万吨(140t/h)水泥产量:节电:1200万kWh/a,节省标煤:4200tce/a,减排CO2:10500tCO2

六、技术鉴定、获奖情况及应用现状

围绕FP盘辊式料床粉磨系统的技术革新,已获国家实用新型17项,发明专利3项。2010年3月由中国建材联合会组织的专家组对“FPP预粉磨技术与设备研发”的新产品新技术鉴定。2011年1月“FPP预粉磨技术与设备研发”被中国建筑材料联合会和中国硅酸盐学会评为建筑材料科学技术奖的科技进步三等奖;2011年月1月“FPP预粉磨系统装备”被江苏省经济和信息委员会评为江苏省优秀新产品奖;2007年12月“FPP系列磨机”被中化人民共和国科技部授予国家火炬计划证书;2010年12月“FPP系列磨机”被江苏省科技厅认定为高新技术产品。

七、典型应用案例

案例应用单位:贵州省贞丰县仁都水泥有限公司

技术提供单位:江苏飞鹏重型设备有限公司

建设规模:增加一台FPP1900(功率:630kW),增加一台FPS15粗粉分级机(功率:7.5kW),进料提升机一台(15kW),回料提升机一kW),空气斜槽四台(4*5.5kW),增加一台袋式除尘器(7.5kW),增加的装机容量:1054kW,技改投资额:650万元。年节能量4200tce,年减排量11088tCO2,投资回收期6个月。

八、推广前景和节能减排潜力

预计未来5年,可在建材行业球磨系统改造领域推广10%,形成的年节能能力为8万tce;年碳减排能力22万tCO2。


分享到:
相关文章 iTAG:
没有相关技术
频道推荐
服务中心
微信公众号

CESI
关于本站
版权声明
广告投放
网站帮助
联系我们
网站服务
会员服务
最新项目
资金服务
园区招商
展会合作
中国华体会网页版登录入口-华体会(中国)-华体会(中国)上线下相结合的一站式节能服务平台。
©2007-2016 CHINA-ESI.COM
鄂ICP备16002099号
节能QQ群:39847109
顶部客服微信二维码底部
扫描二维码关注官方公众微信